Prevenzione Incendi Scuole Taranto

TITOLO PROGETTO

Progetto di Prevenzione Incendi per il rilascio del parere del comando provinciale VVF

PRESTAZIONI SVOLTE

Progettazione Esecutiva.

COMMITTENTE

Comune di Taranto

IMPORTO OPERE DI PROGETTO

€ –

PERIODO ESECUZIONE

gennaio 2022 – settembre 2023

PROGETTISTI RESPONSABILI

Dott. Ing. Danilo SALINAS
Dott. Ing. Davide BUSETTO

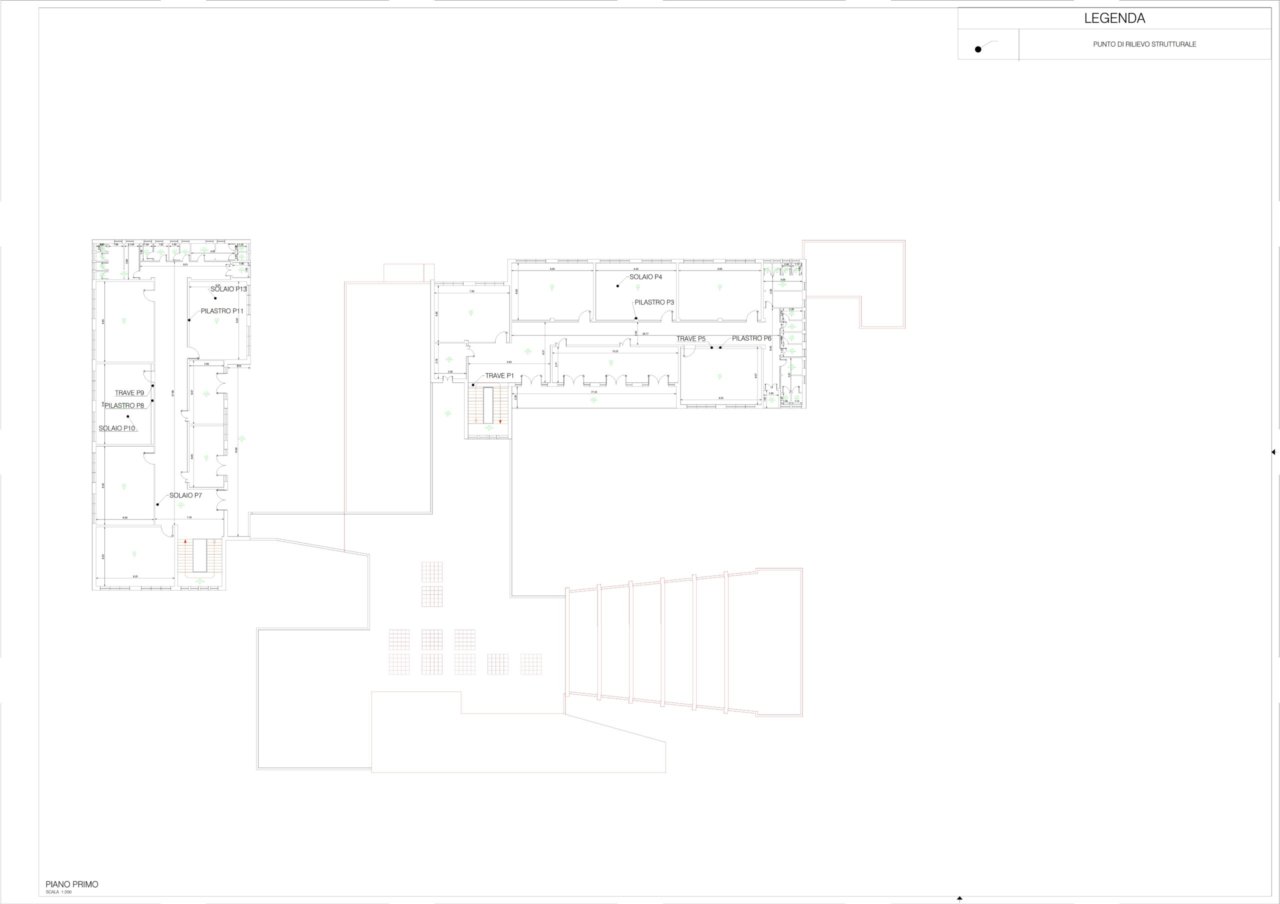
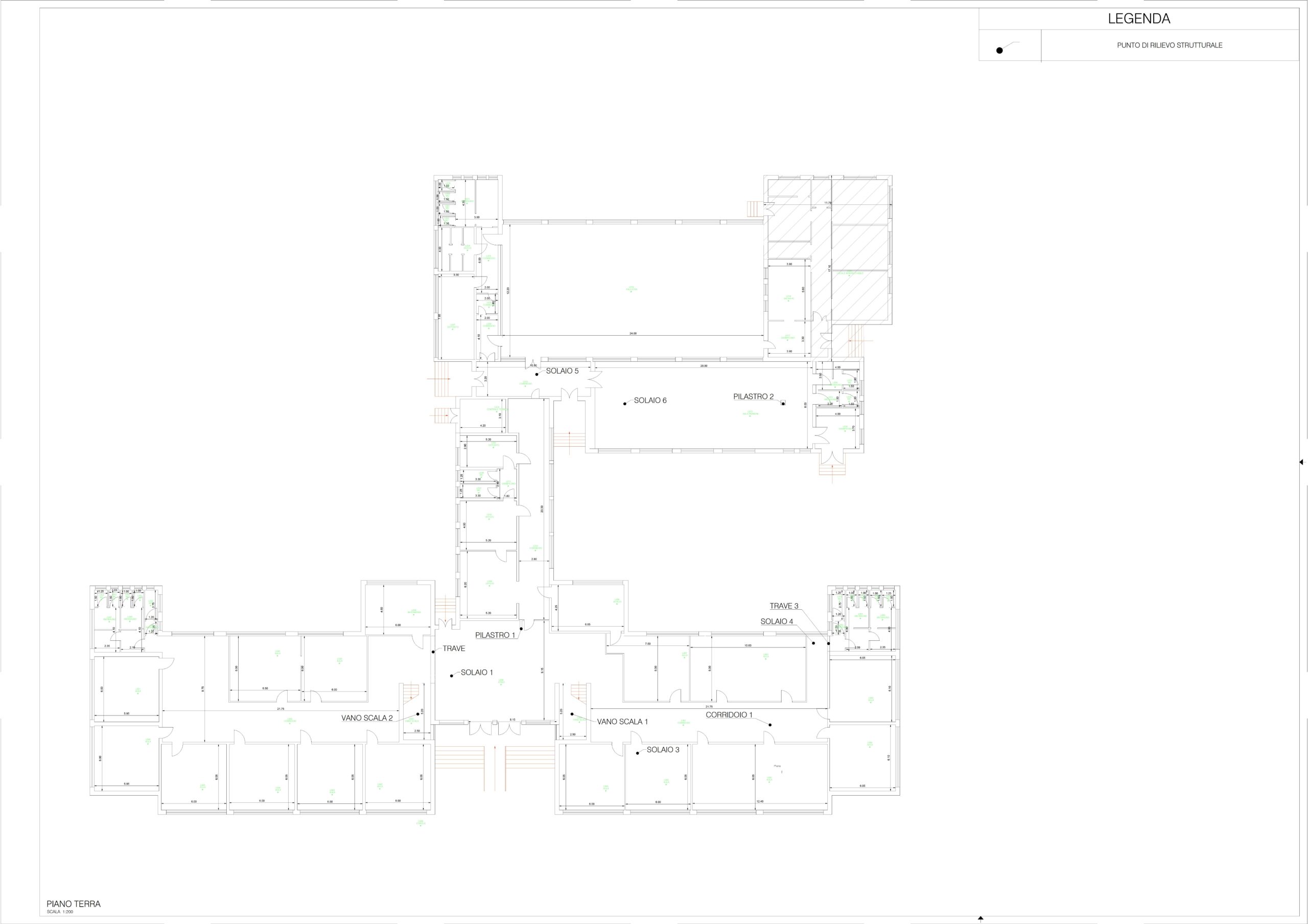
DESCRIZIONE DEL PROGETTO

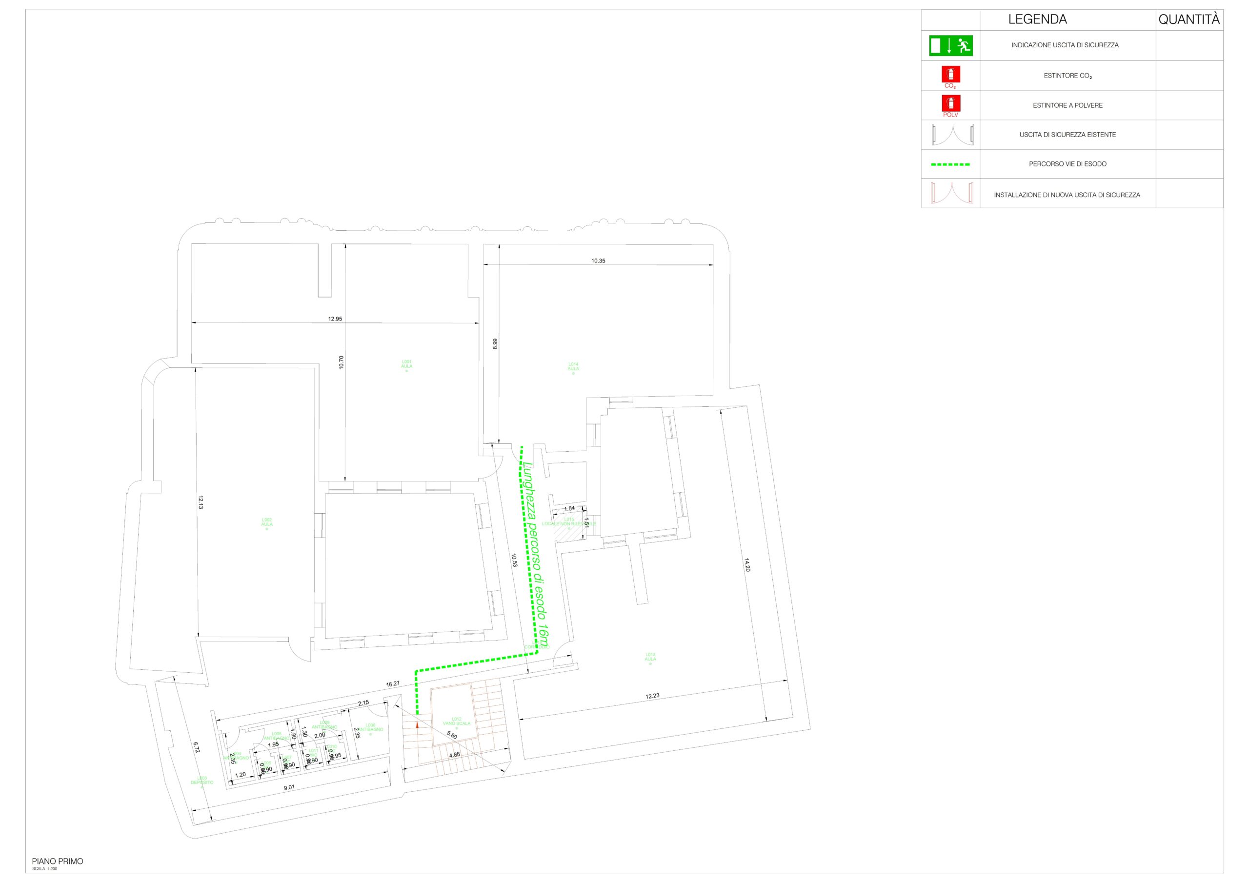
Progetto di adeguamento alle norme di prevenzione incendi. Riferendosi principalmente al D.M. 26 agosto 1992 – “Norme di prevenzione incendi per l’edilizia scolastica”.

Gli interventi pianificati riguardano la compartimentazione, le vie di esodo, i sistemi di allarme, l’illuminazione di sicurezza e le attrezzature antincendio. La centrale termica  è progettata con requisiti di sicurezza specifici, rispettando la normativa antincendio e garantendo vie di uscita adeguate e misure di resistenza al fuoco per le strutture portanti.

Le scuole interessate:

  1. Istituto Falcone-Ungaretti
  2. Plesso Tommaso Fiore
  3. Scuola Materna E Primaria Statale Don Milani
  4. I.C. De Amicis
  5. Scuola Media Statale Ugo Foscolo
  6. Plesso Mazzaraso
  7. Plesso Sovito IV
  8. I.C. Europa-Alighieri
  9. Scuola Elementare Emanuele Basile
  10. I.C. G. Galilei
  11. Plesso Consiglio
  12. I.C. Renato Moro
  13. I.C. Luigi Pirandello
  14. Plesso C. Morvillo
  15. I.C. San Giovanni Bosco
  16. Plesso Val D’Aosta
  17. Plesso Tintoretto
  18. I.C. Monaco
  19. XII Circolo Didattico Livio Tempesta
  20. Plesso Papa Giovanni Paolo II
  21. Plesso A.Volta

PHOTOGALLERY